SKY VIEW EVENT CENTER

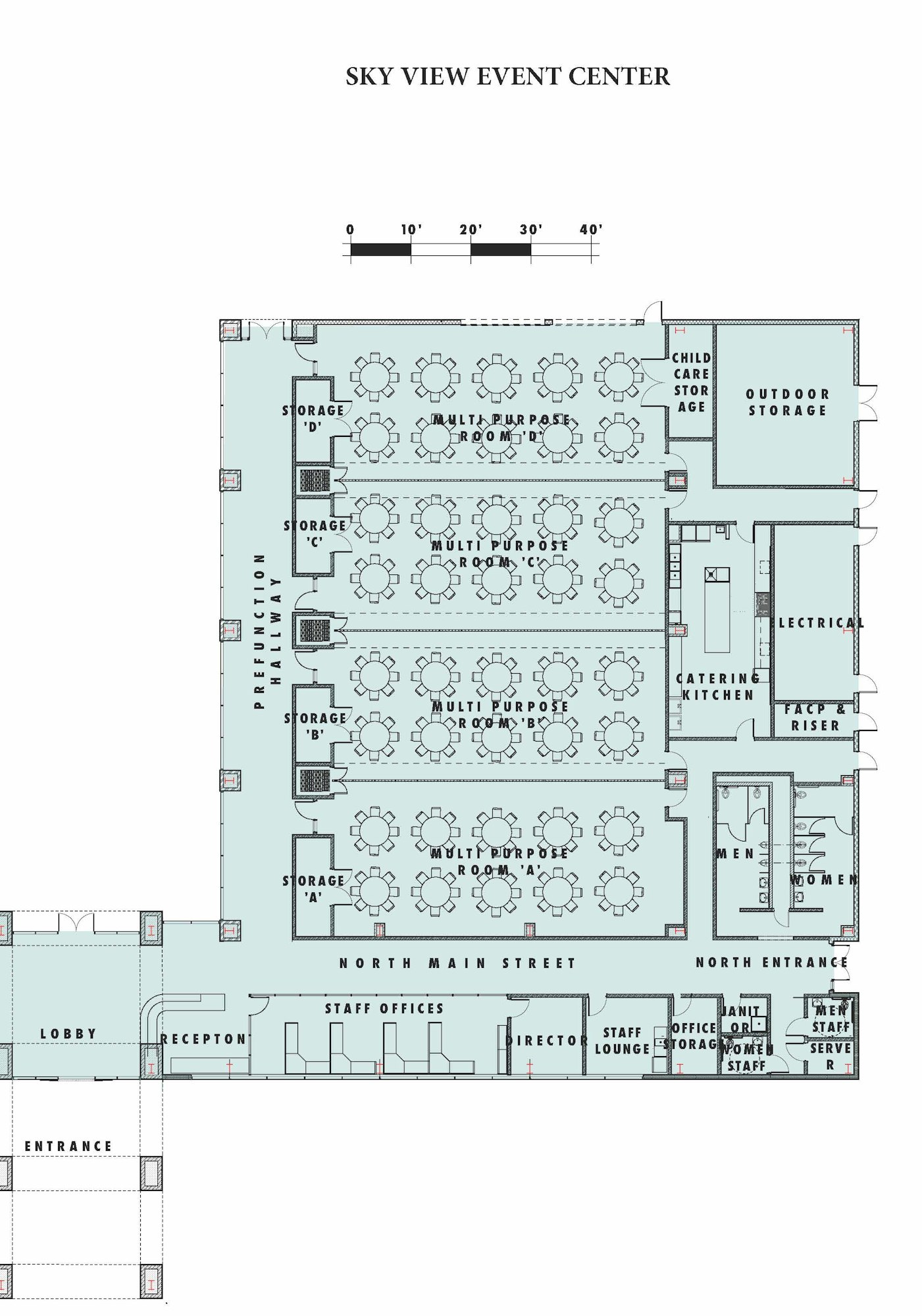
The Sky View Event Center, at build-out, wil include a 300+ person multi-purpose room, catering kitchen, restroom facilities, four recreation classrooms/meeting rooms, and two full-size (four youth size) indoor basketball courts with volleyball overlays.



.jpg?ixlib=rb-1.1.0&w=2000&h=2000&fit=max&or=0&s=a2775ccfddc2b2538e5e131c22507466)




.jpg?ixlib=rb-1.1.0&w=2000&h=2000&fit=max&or=0&s=a2775ccfddc2b2538e5e131c22507466)

Phase 1 will include the multip-purpose area, kitchen and restroom facilities. In addition 300+ parking spots will also be installed to suppliment the current shortage at Vernola Family Park.
Upcoming Important Events:
Ground Breaking- November 8, 2019. 10:00am
Grand Opening- Fall 2020
